Caricamento in corso…
€ 0,00
Totale
Chiudi
Carrello
Accedi
Non sei iscritto?
Registrati
info@shop-automation.com
Azienda
Italiano
English
Inserire il codice da cercare
Devi inserire almeno 4 caratteri per la ricerca
prodotti - € 0,00
Homepage
Carrello
Contatti
Offerte
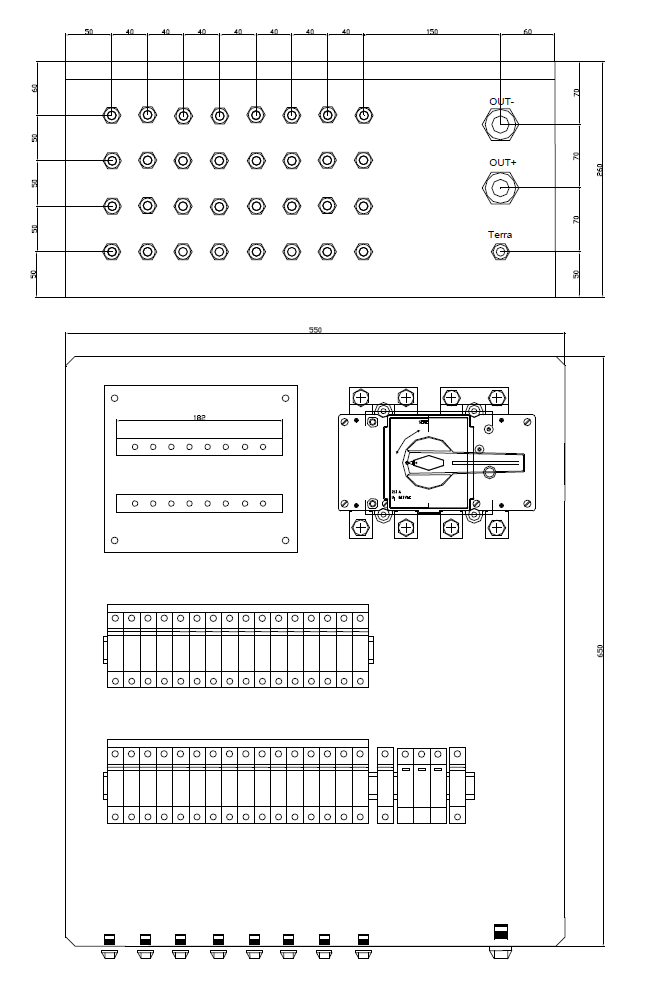
7859044BP
Quadro di campo 16 stringhe - Vers.44BP
Homepage
ITALWEBER
QUADRISTRINGA SOLAR
7859044BP
richiedi
offerta personalizzata
per quantità e consegna
Marca: ITALWEBER
Categoria: QUADRISTRINGA SOLAR
Codice: 7859044BP
Confezione: 1 PCE
Disponibilità:
0 PCE
Quadro di campo 16 stringhe - Vers.44BP
Login clienti
Power Service B2B
Richiedi informazioni
Brands